9.1茶馆一品堂永远免费论坛,xc8866茶楼楼凤大修车队论坛,一品小红楼论坛,一品楼免费信息论坛花满楼全国信息论坛

打造中国专业公装网站,截止目前已为26829位用户提供了优质装修服务! | | 北京装修公司咨询电话: 400-900-4560 | 网站地图
选择城市
热门城市:
×
B

我也要设计成这样

今天已有125人获取了装修预算
所在城市:*
房屋面积:*
空间状态:*
空间状态
  • 空间状态
  • 毛坯房
  • 旧房重装
  • 局部改造
装修档次:*
装修档次
空间类型:*
空间类型
    *

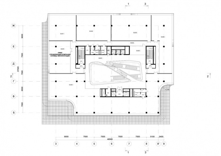
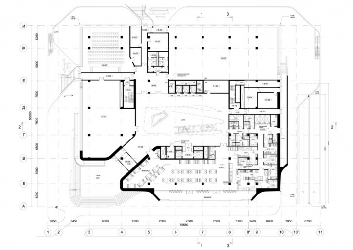
    黑与白的交响乐:俄罗斯Dominion办公楼设计欣赏

    案例介绍

    优秀设计师

    • 项目名称: 黑与白的交响乐:俄罗斯Dominion办公楼设计欣赏
    • 服务项目: 行业新闻
    • 设计时间: 2022-06-02 22:57:33

     日期:2017-05-02 / 人气:

    今天,万兴通达装饰为大家提供一套很扎眼的作品,扎哈·哈迪德设计的dominion办公大楼位于莫斯科新兴的yuzhnoportovy地区。方案围绕贯穿建筑的中庭展开,内部楼梯相互交错穿插,外部呈水平向的堆叠状,建筑每一层的露台因楼层的位移而上下错开。
    黑与白的交响乐:俄罗斯Dominion办公楼设计欣赏黑与白的交响乐:俄罗斯Dominion办公楼设计欣赏黑与白的交响乐:俄罗斯Dominion办公楼设计欣赏黑与白的交响乐:俄罗斯Dominion办公楼设计欣赏黑与白的交响乐:俄罗斯Dominion办公楼设计欣赏黑与白的交响乐:俄罗斯Dominion办公楼设计欣赏黑与白的交响乐:俄罗斯Dominion办公楼设计欣赏黑与白的交响乐:俄罗斯Dominion办公楼设计欣赏黑与白的交响乐:俄罗斯Dominion办公楼设计欣赏黑与白的交响乐:俄罗斯Dominion办公楼设计欣赏黑与白的交响乐:俄罗斯Dominion办公楼设计欣赏黑与白的交响乐:俄罗斯Dominion办公楼设计欣赏

    编辑:万兴通达

    推荐阅读:

    公寓楼风水,公寓楼风水不好怎么办?

    自助健身房投资多少钱想开一家健身房请问需要投资多少钱

    。